- Производитель:
- Артикул:W588967
- Доступно:9999 шт.
| Вариант | |
| Инженерная система | Санитарные узлы |
| Масса нетто | 12 кг |
| Назначение | для умывальника для инвалидов |
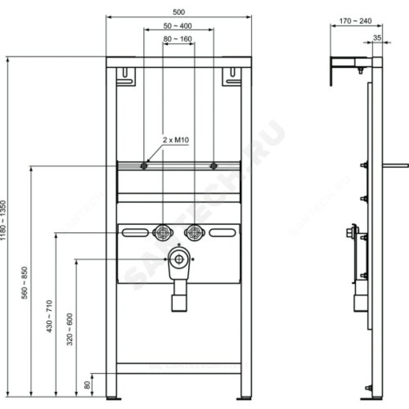
| Наименование производителя | Встраиваемая рама для умывальников для инвалидов. Регулируемая высота 1180-1350 мм, ширина 500 мм. Стальная рама, облегченный монтаж. Регулируемая глубина 170-240 мм. |
| Страна происхождения | Польша |
| Штрих-код | 3800828020580 |
Пока не было вопросов.





































