- Производитель:
- Артикул:A104/850
- Доступно:9999 шт.
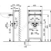
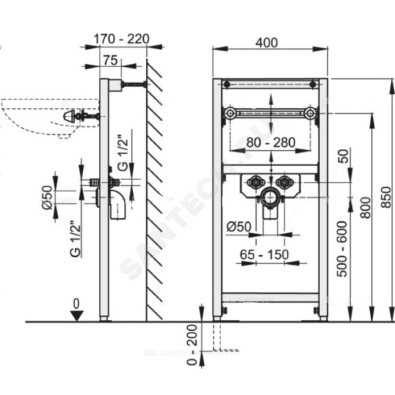
- Размеры (Д x Ш x В):- x 400.00 x 1,050.00 см
| Вариант | |
| Высота монтажная | 850 мм |
| Глубина | 220 мм |
| Глубина установки инсталляции | 170-220 мм |
| Инженерная система | Санитарные узлы |
| Комплект поставки | РамаМонтажный комплект: винт ?8?60 – 4 шт., дюбель ?12 – 4 шт.Монтажный комплект для крепления раковины: винт М10?100 – 2 шт.Колпаки для закрытия гаекРезьбовое соединение для подключения воды: G1/2"–G1/2"Стоковое колено HT50 с прокладкой |
| Масса нетто | 5.9232 кг |
| Назначение | для умывальника |
| Расстояние между креплениями сантехнического прибора | 80-280 мм |
| Регулировка по высоте | 0-200 мм |
| Страна происхождения | Чешская Республика |
| Штрих-код | 8595580500641 |
Пока не было вопросов.


























